Property Valuation
Follow us on:
£42.50 per sq ft

45 Charlotte Road

London, EC2A 3PD

The Space

Converted Victorian Warehouse Office

At a glance

Property Type Offices
Tenure To Let
Size 772 sq ft
Rent £42.50 per sq ft
Business Rates £13,284 per sq ft
Service Charge inc in rent psf
Energy Performance Rating Upon enquiry

Shoreditch High Street
6 mins


Old Street
6 mins


Hoxton
9 mins


Liverpool Street
10 mins


Shoreditch High Street
4 mins


Old Street
6 mins


Hoxton
9 mins


Liverpool Street
11 mins


Key Points

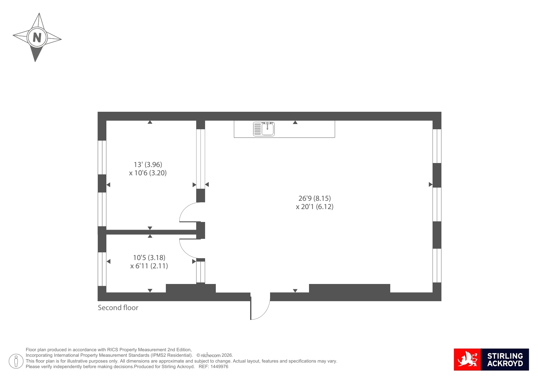
  • Offered Across 772 sq ft
  • Second Floor Office
  • Kitchenette
  • Close to Local Amenities
  • Located in a Creative District
  • Old Street & Shoreditch High Street Station's Nearby

Description

Offered across 772 sq ft and set within a former Victorian warehouse, the second floor at Charlotte Road will make the perfect base for any creative business. Located in Shoreditch the area proves to be an ever lasting popular location for local residents, independent operators and businesses.

Providing an abundance of natural light, full of character and overlooking the cobbled streets of Charlotte Road. Connectivity is unmatched, just a few moments away from both Old Street and Shoreditch High Street Stations, with Liverpool Street Station around a 10 minute walk away.

Available area

The accommodation comprises the following areas:

Name sq ft sq m Availability
2nd 772 71.72 Available
Total 772 71.72

The Location

Charlotte Road is located in the heart of the Shoreditch triangle, the building is situated amongst an array of coffee shops, bars, restaurants and commercial occupiers.

Occupiers on the street are predominantly from creative and tech sectors including fashion designers, galleries, showrooms, branding agencies and tech developers. With the current popular restaurant Gloria at the top of the road close to the junction with Great Eastern Street, alongside numerous other dining experiences including Nobu Hotel and the Hoxton Hotel all within minutes of this office.

£42.50 per sq ft