Property Valuation
Follow us on:
Freehold Development Opportunity
£2,000,000

47-49 Dorset Road

London, SW8 1EX

The Space

Freehold Sale – Lambeth Commercial Development Opportunity

At a glance

Property Type Suis Generis (other)
Tenure For Sale
Size 6,490 sq ft
Price £2,000,000
Business Rates Upon Enquiry
Service Charge n/a
Energy Performance Rating This property has been graded as G (154)

Vauxhall
9 mins


Wandsworth Road
20 mins


Clapham High Street
22 mins


Queenstown Road (Battersea)
23 mins


Oval
6 mins


Nine Elms
7 mins


Vauxhall
8 mins


Stockwell
10 mins


Key Points

  • Self-contained Detached Freehold building - ‘Island Site’.
  • Freehold Sale £2,000,000 – on the basis of Vacant Possession
  • Prominent Return frontage onto Dorset Road with vehicular access
  • Total GIA Building Area - 6490 sq ft – configured across Basement, Ground, First and Second Floors
  • Mixed class use- sui generis & C3 residential
  • Self-contained commercial building with open-plan areas and ancillary rooms
  • Significant development potential, including scope for additional floors (STP)
  • Suitable for a wide range of uses, including community, office, leisure, medical, educational & residential redevelopment (STP)

Description

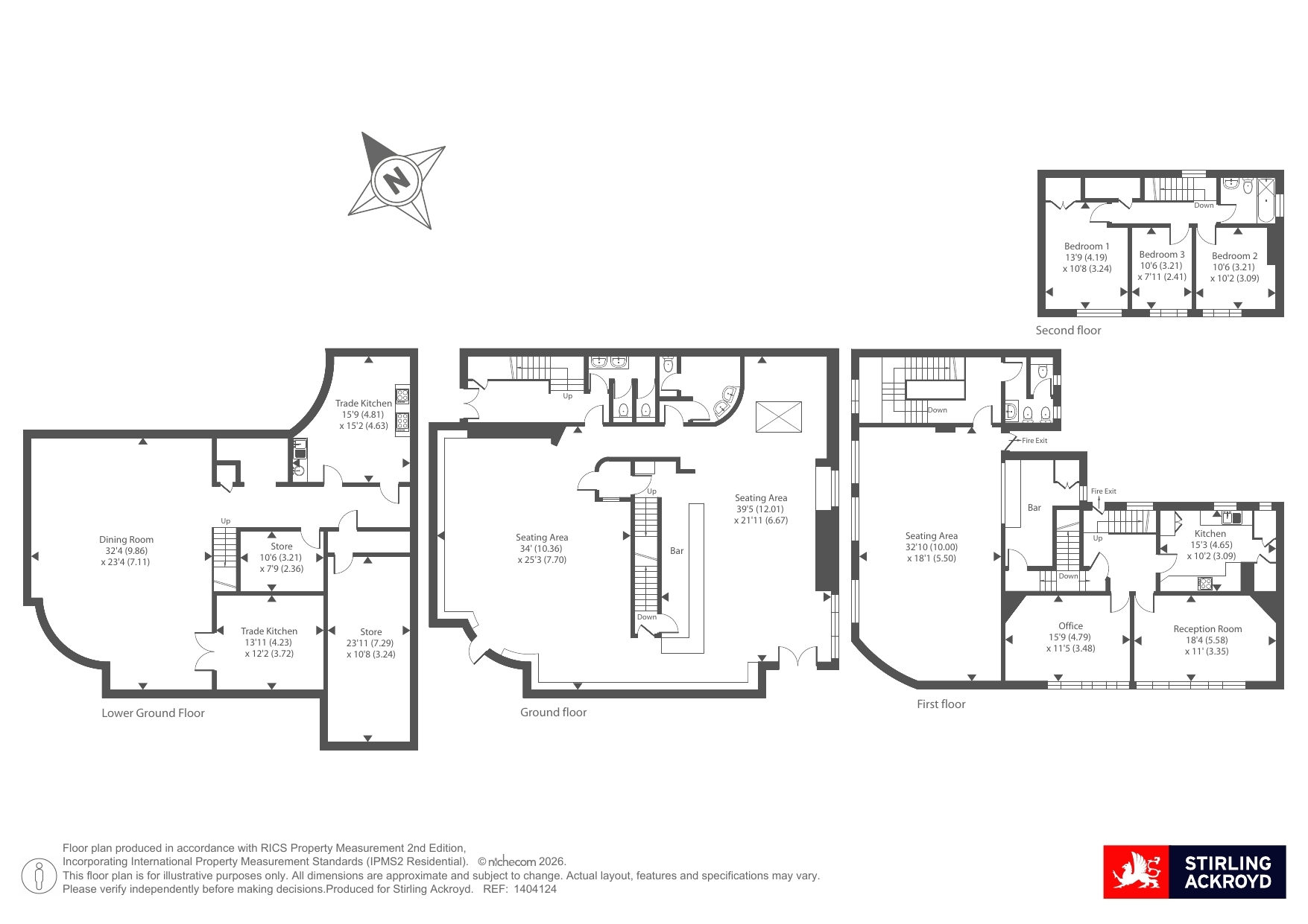
The property comprises a self-contained freehold building arranged over Basement, Ground, First and Second Floors. Historically a public house and more recently used for community, event and function-room purposes, the building is ideal for owner occupiers, investors and developers. The self contained detached building occupies a prominent corner plot, benefitting from generous site depth, an extensive footprint and strong frontage visibility. The internal layout and overall structure make the building suitable for a wide variety of commercial and social uses. Given the building footprint and existing built form, the property offers development potential.

Basement: 1,636 sq ft – Used as kitchen, storage, ancillary rooms, plant and service areas.

Ground Floor: 1,937 sq ft - Open-plan hall, lobby and bar area with separate male and female toilets.

First Floor: 1,496 sq ft - Function room/hall, terrace, kitchen & living room with an additional W/C.

Second Floor: 517 sq ft – Living accommodation.

Gated ground floor external area: 904 sq ft - Secure external area suitable for leisure use, deliveries & parking.

Total Site Area : 6490 sq ft

Available area

The accommodation comprises the following areas:

Name sq ft sq m Availability
Basement 1,636 151.99 Available
Ground 1,937 179.95 Available
1st 1,496 138.98 Available
2nd 517 48.03 Available
Building - Gated Ground Floor External Area 904 83.98 Available
Total 6,490 602.93

The Location

The property offers excellent connectivity being within just a 10 minute walk of both Oval and Nine Elms stations, with numerous bus routes serving the area with connections to Vauxhall, Clapham, Stockwell, and Nine Elms.

Located within a predominantly residential area, 47–49 Dorset Road is on the junction of on Dorset Road & Meadow Road. Dorset Road connects to the A3 (Clapham Road).

£2,000,000