Property Valuation
Follow us on:
£175,000

124 Anerley Road

London, SE20 8DL

The Space

South London Commercial Investment – Long Leasehold - For Sale

At a glance

Property Type Investments / Offices / Retail
Tenure For Sale
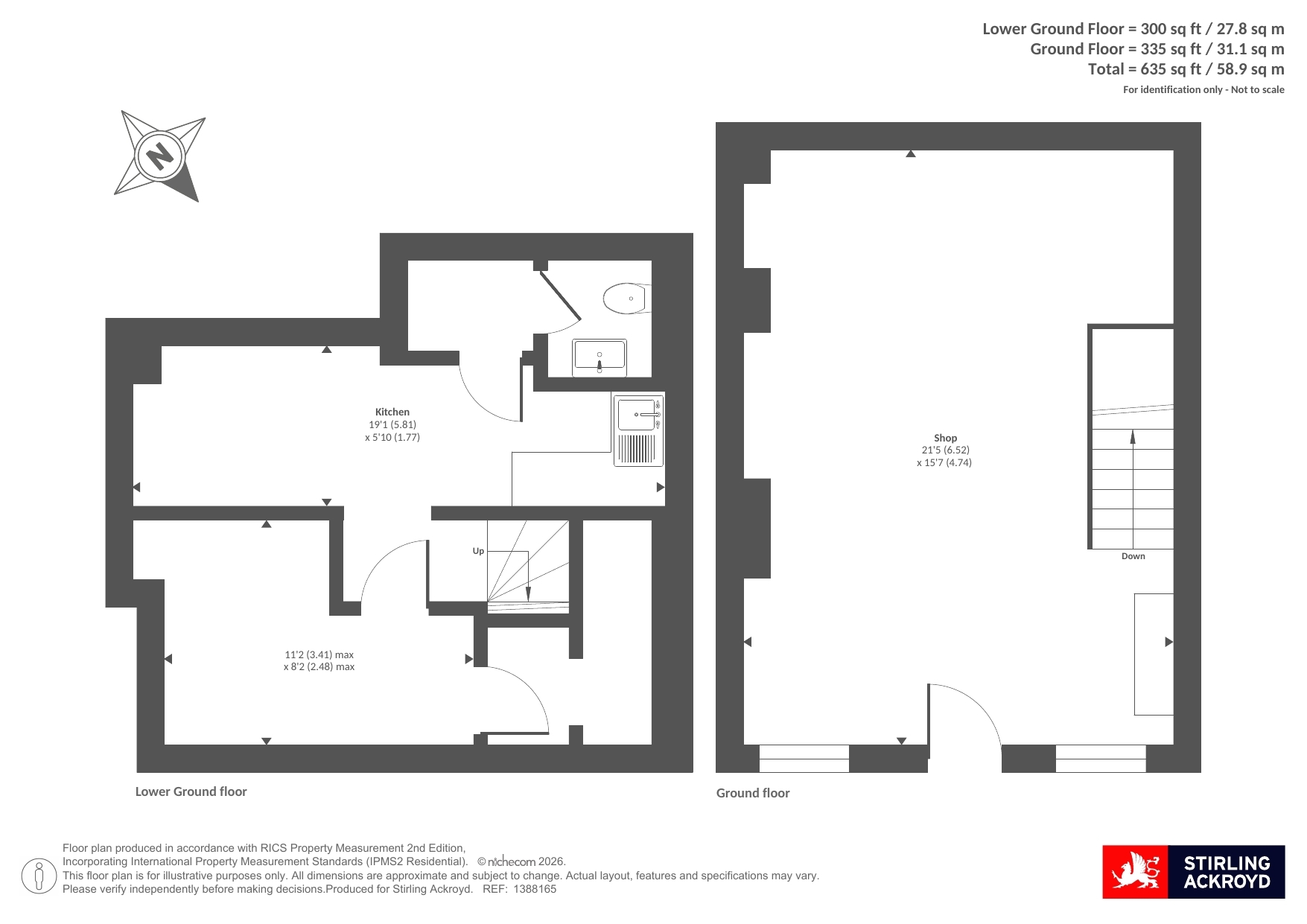
Size 635 sq ft
Price £175,000
Business Rates Upon Enquiry
Service Charge No Ground Rent Payable
Energy Performance Rating This property has been graded as C (62)

Crystal Palace
4 mins


Anerley
6 mins


Penge West
9 mins


Penge East
15 mins


Crystal Palace
4 mins


Anerley
6 mins


Penge West
10 mins


Penge East
16 mins


Key Points

  • Self-contained ground floor commercial unit with basement
  • £175,000 for the benefit of the Long Leasehold
  • The sale is not subject to VAT
  • A1 Retail Use
  • The sale is subject to Vacant Possession
  • Long leasehold – 125 years from 24 April 2013
  • Total floor area : 635 – divided over ground floor 335 sq ft and basement 300 sq ft
  • Ideal for a commercial investor and an owner occupier seeking a commercial space

Description

The property comprises a self-contained ground floor retail unit with ancillary basement accommodation, kitchenette and WC facilities.

The premises were previously occupied as a hairdressing and beauty salon since 2015, most recently let in 2020 on a 5-year fixed term lease at a rent of £14,400 per annum, with the tenant vacating in October 2025.

The unit is now offered with vacant possession, providing flexibility for either immediate occupation or re-letting. The existing long lease allows for A1 retail use only and any other use would be subject to a formal variation to the lease and Freeholder consent.

There are no residential upper parts or ground rent payable.

The Location

The property is situated on Anerley Road in Crystal Palace, a well-established South East London location characterised by a mix of independent retailers, office occupiers and residential accommodation.

The property is located approximately 0.4 miles (7–8 minute's walk) from Crystal Palace Station, which provides excellent regional and London-wide connectivity. Crystal Palace Station offers both London Overground and National Rail services.

The area is also well served by local bus routes along Anerley Road, providing access to Penge, Beckenham, Sydenham and Bromley.

£175,000